Hidrostanice su kompletni kompaktni uređaji za povišenje tlaka velikog opsega primjene kako u kućanstvima tako i u industrijskim postrojenjima, hotelima, zgradarstvu i ostalim mjestima gdje je potrebno povišenje tlaka.
U svojoj ponudi imamo niz proizvoda od najjednostavnijih hidroblokova pa do kompletnih hidrostanica opremljenih svom potrebnom automatikom i dokumentacijom.
Naše hidrostanice prilagođene su konkretnom zahtjevu i to u pogledu cjevovoda, raznih kombinacija tipova i kapaciteta crpki te načinu upravljanja u različitim režimima rada.
Tehnički podaci hidrostanica:
Broj crpki: 2-6 crpki
Protok: max 1080 m3/h
Visina dizanja: max.160 m
Temperatura tekućine: 0°C do +70°C
Radni tlak: max. 16 bar
- Grundfos hidrostanica 1
- Grundfos hidrostanica 2
Kontejnerske hidrostanice
Kontejnerske hidrostanice su gotovi proizvodi za povišenje tlaka vode u vodoopskrbnim sustavima. To je proizvod koji uz potpunu radioničku predmontažu, omogućava brzu montažu sa spajanjem na dovodni i tlačni cjevovod i puštanje u pogon na odabranoj lokaciji.
Kontejnerska hidrostanica se sastoji od uređaja za povišenje tlaka – hidrostanice, odabranog prema pojedinim zahtjevima, kontejnerskog spremnika odgovarajuće veličine – odabranog prema veličini hidrostanice, te opreme hidrostanice, uključujući ventile, zasune, razvodni ormar, grijalica, te sve dodatne opreme prema zahtjevima pojedine stranke.
- Kukuruzari – hidrostanica
- Grundfos hidrostanica – Kukuruzari
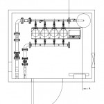
- Shema ugradnje 1
- Shema ugradnje 2
- Shema ugradnje 3
- Shema ugradnje 4
Podzemne hidrostanice
Podzemne hidrostanice su gotovi proizvodi za povišenje tlaka vode u vodoopskrbnim sustavima. Ugrađuju se na mjestima gdje ne postoji mogućnost smještaja iznad zemlje, ili gdje se projektom zahtjeva da precrpna stanica bude ispod zemlje.
To je proizvod koji uz potpunu radioničku predmontažu, omogućava brzu montažu sa spajanjem na dovodni i tlačni cjevovod i puštanje u pogon na odabranoj lokaciji u pripremljenu građevinsku jamu.
Podzemna hidrostanica se sastoji od uređaja za povišenje tlaka – hidrostanice, odabranog prema pojedinim zahtjevima, podzemnog spremnika odgovarajuće veličine, te opreme hidrostanice, uključujući ventile, zasune, razvodni ormar, grijalica, te sve dodatne opreme prema zahtjevima pojedine stranke.
- Podzemna hidrostanica – Shema 1
- Podzemna hidrostanica – Shema 2









